2025-10-20

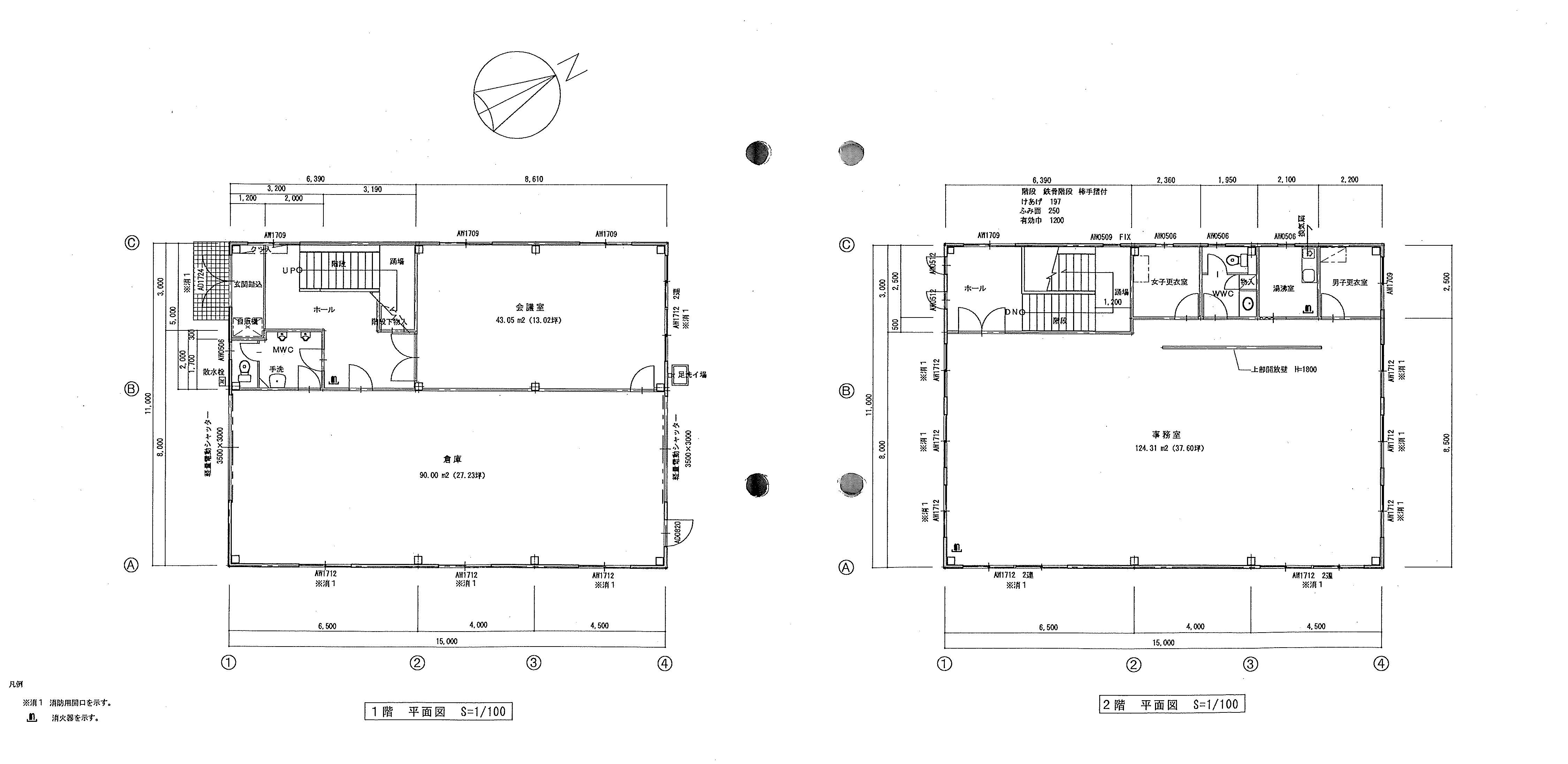
大門5丁目貸事務所平面図


大門5丁目貸事務所平面図








  • 月別記事一覧



    page top